|
|
|
|
|
|
|
|
|
|
|
|
|
|
| |
|
|
| |
| |
 |
 |
| |
|
| |
|
|
|
|
|
|
|
|
|
|
|
Item |
|
Description |
|
|
|
|
|
|
|
|
|
|
|
|
|
Valve Size |
|
15A ~100A |
|
|
|
|
|
|
|
Actuator Type |
|
Diaphragm |
|
|
|
|
|
|
|
Actuator Action |
|
Direct Action(Air
to close), Reverse Action(Air to open) |
|
|
|
|
|
|
|
Operating Media |
|
Compressed Dry
air |
|
|
|
|
|
|
|
In-Put Signal |
|
4 ~ 20mA DC, |
|
|
|
|
|
|
|
Operating Press |
|
2.8kg/cm©÷ |
|
|
|
|
|
|
|
Spring Range |
|
0.8 ~ 2.4 kg/cm©÷ |
|
|
|
|
|
|
|
Fluid Temp |
|
17¡É ~ 230¡É |
|
|
|
|
|
|
|
Connetion |
|
JIS 10K RF, 20K,
40K, ANSI 150# RF, 300#, 600# |
|
|
|
|
|
|
|
Body Material |
|
SCPH2, SCPH21,
SCPL1, SCS13, SCS14, SCS16 |
|
|
|
|
|
|
|
Leakage Allowance |
|
Standard:ANSI
Class II (0.5%), Optional:0.1%, Soft seal:ANSI Class
VI |
|
|
|
|
|
|
|
Option |
|
Soft Touch, Bellow
seal, Fin Bonnet, Multy step cage, Hand wheel top,
Extention |
|
|
|
|
|
|
|
Accessory |
|
Solenoid Valve,
Air filter Regulator, E/P positioner |
|
|
|
|
|
|
|
|
|
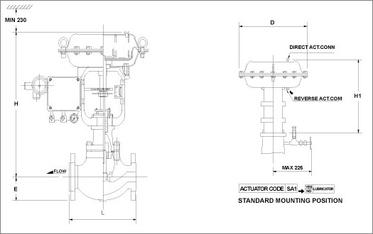
DIMENSION
|
UNIT : mm |
| 
|
| 
|
| MODEL
|
SIZE |
L
|
H
|
E
|
H1
|
¡ËD
|
LIFT |
SVC-1000-15A |
15A |
1/2" |
184 |
420 |
40 |
282 |
220 |
15 |
SVC-1000-20A |
20A |
3/4" |
184 |
420 |
50 |
282 |
220 |
SVC-1000-25A |
25A |
1" |
184 |
420 |
50 |
282 |
220 |
SVC-1000-40A |
40A |
1-1/2" |
222 |
478 |
70 |
343 |
265 |
25 |
SVC-1000-50A |
50A |
2" |
254 |
478 |
78 |
343 |
265 |
SVC-1000-65A |
65A |
2-1/2" |
276 |
569 |
88 |
405 |
365 |
38 |
SVC-1000-80A |
80A |
3" |
298 |
620 |
160 |
405 |
365 |
SVC-1000-100A |
100A |
4" |
352 |
620 |
180 |
405 |
365 |
|
| 
|
 |
|
|
| |
 |
|
|
|
|
|