|
|
|
|
|
|
|
|
|
|
|
|
|
|
| |
|
|
| |
| |
 |
 |
| |
|
| |
|
|
|
|
|
|
|
|
Item |
|
Description |
|
|
|
|
|
|
|
|
|
|
|
|
|
Operating Media |
|
Compressed Dry
Air |
|
|
|
|
|
|
|
Operating Press |
|
4~7kgf/cm©÷ |
|
|
|
|
|
|
|
Rotating Angel |
|
90degree |
|
|
|
|
|
|
|
Service Condition |
|
Weather-proof |
|
|
|
|
|
|
|
Option |
|
Solenoid Valve |
|
|
|
|
|
|
|
Speed control |
|
|
|
|
|
|
|
Limit Switch |
|
|
|
|
|
|
|
Filter Regulator |
|
|
|
|
|
|
|
|
|
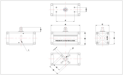
DIMENSION
|
UNIT : mm |
|

|
|

|
|
MODEL
|
A |
B |
C
|
D
|
E
|
F
|
G
|
O |
Q |
J |
I |
P |
ISO |
| SJ-40DA |
99 |
52 |
58 |
12 |
|
|
|
36 |
|
9 |
PT1/8 |
13 |
F03 |
| SJ-50DA |
122 |
67 |
62 |
20 |
64 |
80
|
30 |
36 |
50 |
9/11 |
PT1/8 |
13 |
F03/05 |
| SJ-65DA |
166 |
86 |
80 |
20 |
82 |
80 |
30 |
50 |
70 |
11/14 |
PT1/8 |
16 |
F05/07 |
| SJ-80DA |
230 |
108 |
100 |
20.5 |
104 |
80 |
30 |
|
70 |
17 |
PT1/4 |
21 |
F07 |
| SJ-100DA |
290 |
129 |
120 |
22 |
120 |
80 |
30 |
|
102 |
22 |
PT1/4 |
27 |
F10 |
|
|

|
 |
|
|
| |
 |
|
|
|
|
|